文章詳情頁
UG10怎么用N邊曲面
瀏覽:194日期:2024-08-30 09:24:20
下面給大家介紹的是UG10怎么用N邊曲面的方法,喜歡的朋友可以一起來關注好吧啦網學習更多的UG知識。
第1步、打開UGNX10.0軟件,點擊新建功能,新建一個模型。

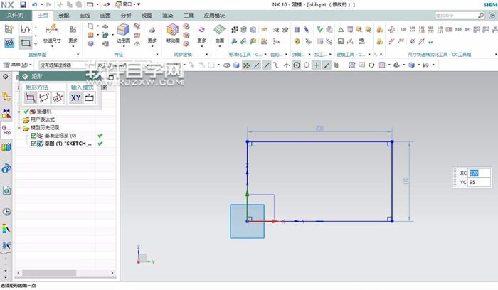
第2步、點擊草圖,點擊創建草圖,選對XY平面,點擊確定。

第3步、然后繪制一個矩形出來。

第4步、選擇矩形,點擊插入菜單,網格曲面,點擊N邊曲面。

第5步、設置參數,如下:

第6步、具體效果怎么設置。

第7步、也可以設置更多的效果。

上一條:ug怎么畫6角螺栓下一條:UG一個面怎么加厚呢?
相關文章:
排行榜

網公網安備