文章詳情頁
SolidWorks拉伸凸臺切除和圓角建模練習
瀏覽:260日期:2024-07-22 15:44:47
下面給大家介紹的是SolidWorks拉伸凸臺切除和圓角建模練習,喜歡的朋友可以一起來關注好吧啦網學習SolidWorks知識哦!
第1步、先看看效果圖:

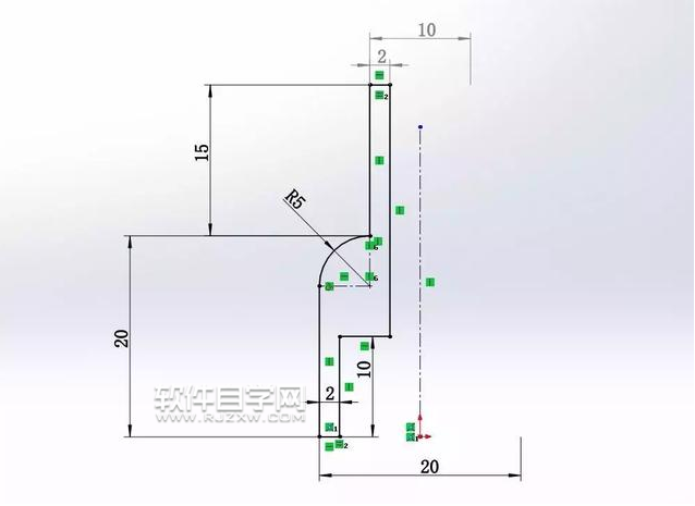
第2步、先進前視基準面,繪制草繪圖形。

第3步、拉伸凸臺,深度A-10=50mm,反向。

第4步、圓角,半徑5mm。

第5步、在實體表面草繪3個矩形。

以上就是SolidWorks拉伸凸臺切除和圓角建模練習,希望大家喜歡,請繼續關注好吧啦網。
相關文章:
排行榜

網公網安備